Villa a schiera in vendita

Resana, Via Piave - San Marco
€ 39.000
3 locali 3 locali
84 Mq 84 Mq
1 bagno 1 bagno

Villa a schiera in vendita

Resana, Via Piave - San Marco

Descrizione annuncio

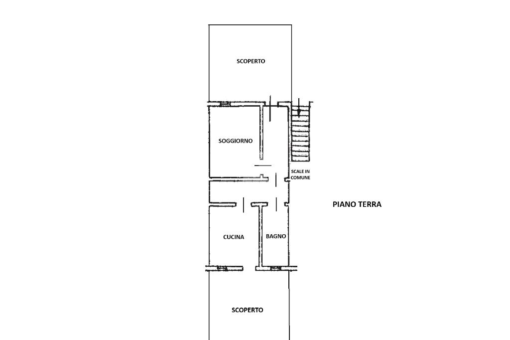
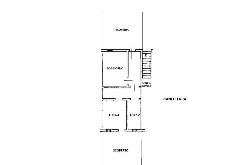
San Marco di Resana, centro frazione, proponiamo porzione di casa terra-cielo disposta su 3 livelli.

L'abitazione, parte centrale di un fabbricato di 3 unità, è così disposta: al piano terra si collocano soggiorno con cucina e un bagno finestrato; dalla scala in comune con l'altra unità, si sale nella zona notte, dove si trovano le 2 camere da letto.

A concludere la proprietà un'ampia soffitta e uno scoperto privato a nord e a sud dell'unità.

Possibilità di acquisto anche della porzione ad est (a destra della foto) ad Euro 52.000 €, così da rendere l'immobile completamente indipendente.

Ulteriori info in agenzia.

Mostra tutto

Nelle vicinanze

Trasporto pubblico Trasporto pubblico
Resana
Resana
2,0 Km
Sottopasso
Sottopasso
2,6 Km
Trattoria Al Boriccio
Trattoria Al Boriccio
2,6 Km
Scuole Scuole
Scuole
120 m
Ic Comprensivo
2,4 Km
Scuola Primaria Francesco Maria Preti
2,8 Km
Farmacia Farmacia
Farmacia Comunale
2,4 Km
Farmacia Sant'Antonio
2,9 Km
Farmacia
3,0 Km
Supermercati Supermercati
Alì Aliper
2,3 Km
Bar Bar
Bar
2,3 Km
Ristoranti Ristoranti
Ostaria dai Bastardi
90 m
Il Casolare
2,2 Km
Pizzeria al Cavallino
2,3 Km
Cagnin
2,4 Km
Al Boriccio
2,6 Km
Mostra tutto

Caratteristiche

Rif.:
61125641
Piano:
3 di 3 (Piano su più livelli)
Posti auto:
1
Camere da letto:
2
Arredamento:
Parziale
Condizionamento:
Assente
Mostra tutto
Prezzo Prezzo
€ 39.000
Rata mutuo Rata mutuo
€ 179 / mese
Proponi il tuo prezzoProponi il tuo prezzo

Classe Energetica

G
G
G
G
G
G
G
G
G
Anno di costruzione:
1700
Riscaldamento:
Autonomo
Tipo impianto:
A radiatori
Tipo alimentazione:
Metano

Ti interessa visionare l'immobile?

Fissa un appuntamento  Fissa un appuntamento

Richiedi informazioni

* Questi campi sono obbligatori

Calcola il tuo mutuo

Semplice e senza impegno
Anticipo

( % )
Mutuo

( % )

pochi semplici passi

inserisci i tuoi dati
Questionario completato
Grazie per aver richiesto un appuntamento senza impegno con un nostro Consulente del Credito e Assicurativo.

Hai inserito correttamente tutti i dati necessari e a breve riceverai una e-mail con un link da convalidare per inviare i tuoi dati.
Affiliato
Studio Castelfranco Est Srl
Via Borgo Treviso, 85 31033 Castelfranco Veneto (TV)
Via Borgo Treviso, 85 31033 Castelfranco Veneto (TV)
Zona: Castelfranco Veneto Zona Est
Mostra su mappa
Orari: mattina 09.00 - 12.30pomeriggio 15.00 - 19.30
Affiliato
Studio Castelfranco Est Srl
Via Borgo Treviso, 85 31033 Castelfranco Veneto (TV)

2025 Tecnocasa Franchising S.p.A. - P. IVA 08365160152 - Via Monte Bianco 60/A 20089 Rozzano (MI). Ogni agenzia ha un proprio titolare ed è autonoma. Privacy policy | Policy utilizzo | Cookie policy